Plans de salle

Plan de masse

Ce plan vous permet d’apprécier la surface de la salle et celle de l’office.
Le traiteur bénéficie d’une entrée privée permettant ainsi de ne pas gêner les invités.

Exemple : Plan 1

Cet exemple vous permet d’apprécier l’organisation de la salle pour :
140 convives (14 tables de 10 couverts), un buffet et espace de danse.

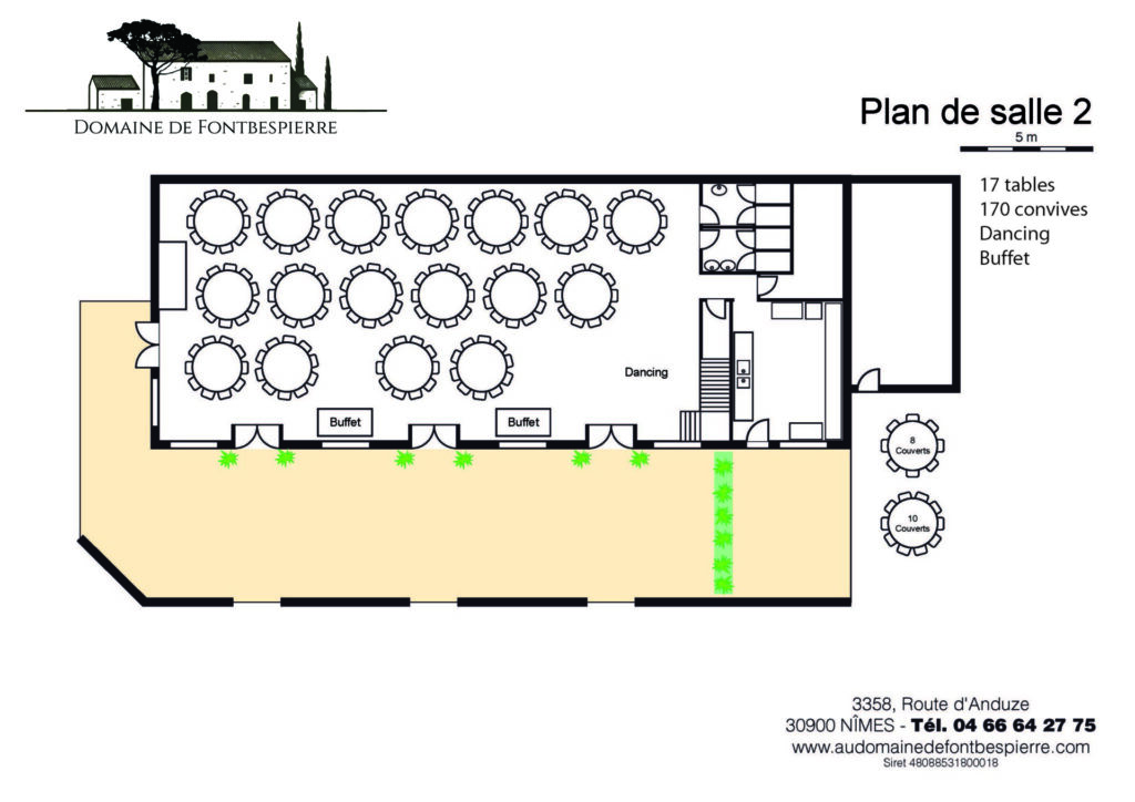
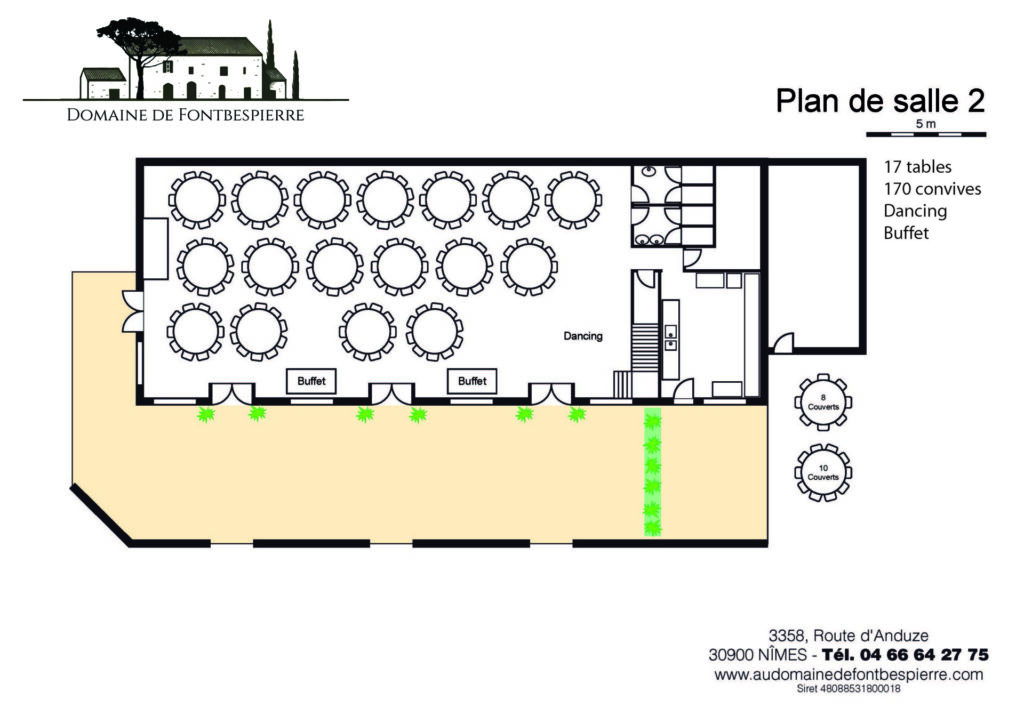
Exemple : Plan 2

Cet exemple vous permet d’apprécier l’organisation de la salle pour :
170 convives (17 tables de 10 couverts), un buffet et espace de danse.

Exemple : Plan 3

Cet exemple vous permet d’apprécier l’organisation de la salle pour :
110 convives (11 tables de 10 couverts), un buffet et espace de danse.

À vos ciseaux, composez votre plan

Tables de 10 couverts - Composez votre plan

Téléchargez et imprimez ce plan.
Découpez les tables pour composer votre propre plan de salle !

Tables de 8 couverts - Composez votre plan

Téléchargez et imprimez ce plan.
Découpez les tables pour composer votre propre plan de salle !

L'avis de nos clients

Cheree Leeson
Parked here for 2 nights in our motorhome. Quiet and on farmlands which has been cleared for motorhomes. Close enough to the city if you have transport. €16 per night. Grey/black/freshwater facilities. No toilets or showers. Very peaceful. A great stay.
Pascal Tesch
A cozy place in the middle of nowhere. Perfectly calm. If you want a forteresse of solitude as a starting base around Nîmes and Avignon, this is the place to be!
Julie Jouffre Egea
Marie Pierre est une très gentille personne. Elle a toujours été disponible et à l’écoute, très réactive lorsque que je lui ai posé des questions. La salle est grande et le matériel mis à disposition est très bien. La terrasse couverte est un gros point positif. Le Reste du jardin est d’une beauté à coupe de souffle. Nos invités ont été conquis par le lieu. Je recommande les yeux fermés ce domaine. Logements au top!
Aurore bella
Nous avons vécu une journée exceptionnelle grâce à ce domaine somptueux. Tout était parfait. Nous remercions Marie-Pierre pour son accueil chaleureux et sa disponibilité. Un mariage organisé en temps records (en 5 semaines), qui est resté exeptionnel malgré les quelques gouttes de pluie. Je recommande vivement ce magnifique endroit. Aurore et Richard
Sylvie ALGARRA
Nous avons célébré notre mariage le 20 septembre au Domaine de Fontbespierre, si vous cherchez un lieu absolument magique , magnifique, cadre idyllique, un parc somptueux qui offre un nombre incroyable d'endroits parfaits pour les photos, les convives, les tables du traiteur, et plus des hébergements sur place etc... et à 15 minutes du centre ville de Nîmes, ne chercher plus . Vous serez reçu avec bien vaillance et la propriétaire des lieux saura vous guider dans le choix d'un traiteur, d'un DJ, ou autre, sans vous forcer la main, mes ces conseils sont très précieux. Nous recommandons le Domaine Fontbespierre les yeux fermés à tous les couples qui rêvent d'un mariage sans fausse note et rempli d'émotions. Merci encore de tout cœur d'avoir fait de notre rêve une réalité! Vivement le revivre dans quelques années ;) Sylvie et Patrick

Domaine de Fontbespierre

Vous pouvez utiliser Google Map pour calculer votre itinéraire.